MB-70HI

MB-70HI

Ca răspuns la cererea tot mai mare pentru construirea de produse cu izolare termică ridicată, pentru ferestre si usi cu rupere termică, au fost dezvoltate sistemele MB-70HI, MB-70US HI, iar pentru ferestre încorporate în peretele cortină, sistemul MB-70CW HI. Designul lor se bazează pe un sistemele cunoscute, puternice și respectate MB-70, MB-70US și MB-70CW.

Izolarea termică a acestui sistem este mult mai mare decât izolarea termică a sistemului de bază, asa incat pentru construcțiile care folosesc sistemul MB-70HI, factorul Uf este de 1.0 - 2.3 W/(m2K) , în funcție de profilele și accesorile utilizate.

Izolarea termică a acestui sistem este mult mai mare decât izolarea termică a sistemului de bază, asa incat pentru construcțiile care folosesc sistemul MB-70HI, factorul Uf este de 1.0 - 2.3 W/m²K , în funcție de profilele și accesorile utilizate.

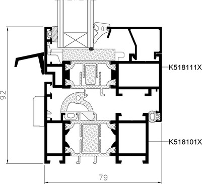
Creșterea izolației termice se realizează prin camera specială de izolare plasată în mijloc, cea care unește profile din aluminiu. Profilul pentru izolare este caracterizat de valori scăzute ale conductivități termice și reduce fluxul de căldură. Locația centrală limitează, de asemenea, contribuțiile de convecție și radiație termică.

Ferestrele și ușile din sistemul MB-70HI, ca și în cazul sistemului de bază, pot fi utilizate atât în soluții individuale, precum și în fațadele din aluminiu, în cazul în care îmbinarea dintre montant și riglă aparține sistemului, MB-SR50N HI+ cu izolare termică îmbunătățită.

  • > 1,0 W/(m2K) Izolarea termică Uf
  • class 4 Permeabilitatea la aer
  • < class E1200 Impermeabil
  • < class C5 Rezistența la vânt