COR 80 Industrial cu BT

COR 80 Industrial cu BT

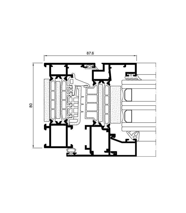
Noul concept de sistem cu balamale de Canal European este capabil sa atinga nivele maxime de etansare, eficienta energetica si protectie acustica, avand cel mai scurt timp de montaj si fabricare. Cu o adancime a tocului de 80 mm, acest sistem raspunde exigentelor climatice cele mai severe, aportand un grad excelent de eficienta energetica datorita valorii minime de transfer termic al ferestrei (Uw), care poate atinge 0.8 W/m²K. Aceste valori minime se ating printr-o structura perfect desenata a zonei de bariera termica, cu poliamide tubulare de 45 mm si introducerea profilelor de poliolefina reticulata atat in perimetrul sticlei, cat si in interiorul tocului si al foii.

Extinsa capacitate de vitrare de pana la 65 mm, permite folosirea unei sticle eficiente din punct de vedere energetic, iar prezenta unor grosimi mari si a dublei camere ii confera excelente caracteristici termice si acustice (pana la 46 dB protectie la zgomot), care se exprima printr-o maxima eficienta energetica si un confort desavarsit la interior. Rezultatele obtinute la incercarile AEV, o definesc prin a fi fereastra cu cele mai bune caracteristici de etansare, permeabilitate si rezistenta la vant, pentru a garanta protectie maxima in fata agentilor atmosferici cei mai defavorabili. Simplitatea montajului si manopera minima permit o fabricare de serie mare, avand ca si consecinta economisirea de timp si costuri minime.

  • Coeficient de transfer termic Uw de la 0,8 (W/m²K)

Consultati tipologia, dimensiunea si sticla

  • Izolare acustica maxima Rw=46 dB
  • Permeabilitate la aer (UNE-EN 12207) CLASA 4
  • Etanseitate la apa (UNE-EN 12208) CLASA E1950
  • Rezistenta la vant ((UNE-EN 12210) CLASA C5
  • Test de referinta 1,1,23 x 1,48 m 2 foaie

Posibilitate de deschidere

  • Maxim vitrare 65 mm
  • Deschidere interioara: Batanta, oscilo-batanta, oscilo-paralela si oscilanta
  • Deschidere exterioara: batanta, proiectanta
  • Secciones Toc – 80 mm / Foaie – 88 mm
  • Grosime profil Fereastra 1,5 mm
  • Lungime bara poliamida 45 mm
  • Dimensiuni maxime/foaie Latime (L) = 1500 mm Inaltime (H) = 2600 mm
  • Greutate maxima 160 Kg
  • Consultati greutatea si dimensiunile maxime conform tipologiei.
  • Finisaje Test de referinta 1,23 x 1,48 m 1 foaie

COR 80 Industrial cu BT