COR 70 INDUSTRIAL CU BT

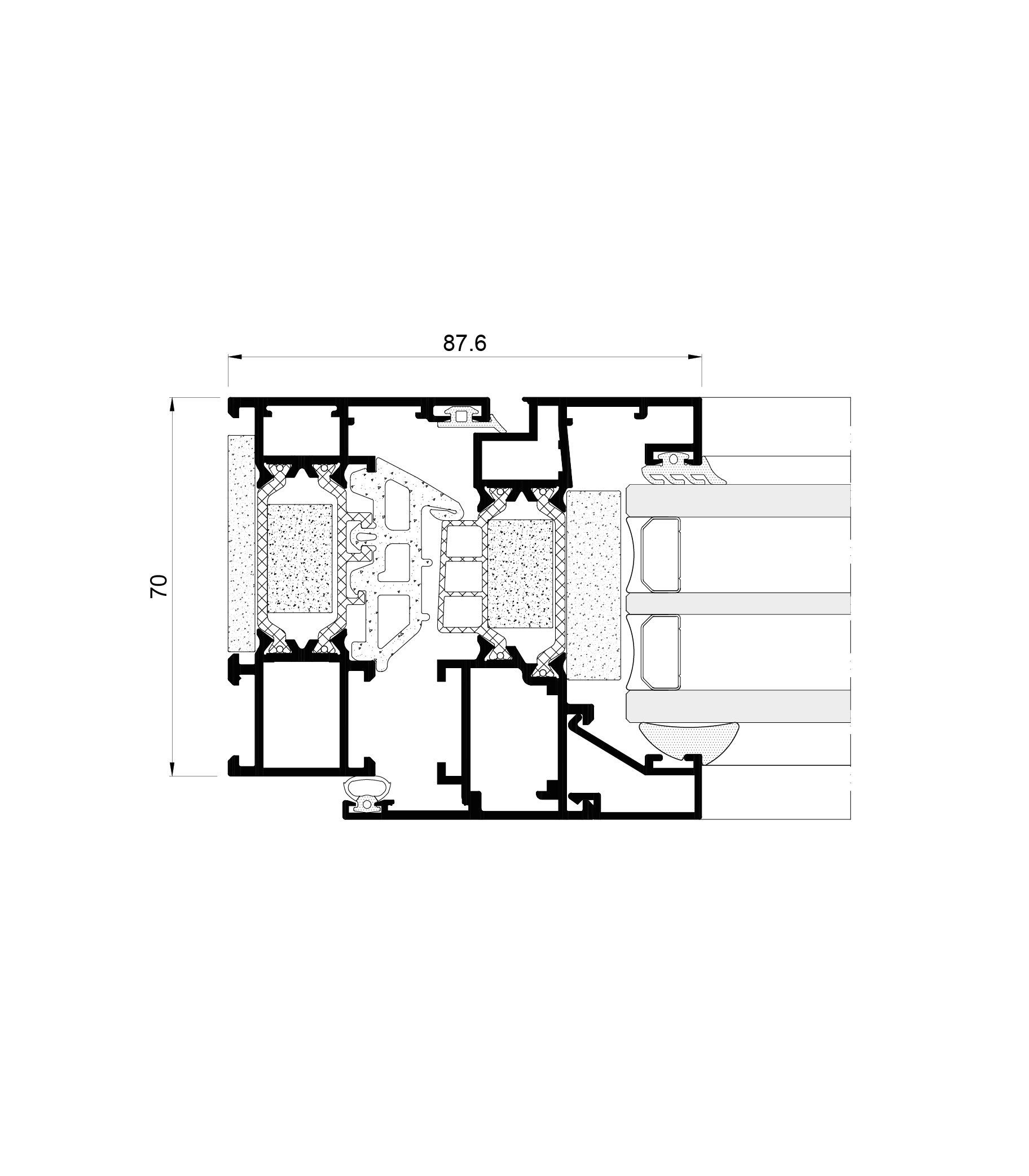
COR 70 Industrial cu BT

Sistem de fereastra cu balamale dezvoltata cu scopul de a satisface necesitățile unui anumit segment de piața cu o tâmplărie economica, simpla si versatila cu prestații ridicate. Având 70 mm. grosime toc si feronerie de Canal European aceasta inovație a Departamentului de I+D+I cu un coeficient de transfer termic de doar 0,9 W/m²K pentru a se putea adapta la diferite conditii climatice si necesitaților in materie de eficienta energetica.

Datorita modului simplu de montare si necesitatea redusa de mana de lucru permite producția industrializata cu economie de timp si cost. Posibilitatea folosirii baghetelor cu estetica dreapta sau rotunjita. Posibilitatea de vitrare pana la 55 mm care permite utilizarea sticlelor economice energetic si grosimi mari, oferind acestui sistem prestații acustice si termice excelente. Prezinta posibilitatea de a utiliza feronerie cu balamale ascunse. Posibilitatea de a utiliza feronerie de siguranța Evo Security.

  • Coeficient de transfer termic Uw de la 0,9 (W/m²K)

Consultati tipologia, dimensiunea si sticla

  • Izolare acustica maxima Rw=44 dB
  • Permeabilitate la aer(UNE-EN 12207): CLASA 4
  • Etanseitate la apa (UNE-EN 12208): CLSA E1800
  • Rezistenta la vant  (UNE-EN 12210): CLASA C5Test de referinta 1,23 x 1,48 m 2 foaie. 
  • Rezistenta la efractie (EN 1627): Grad RC2 (Wk2)Incercare de referinta 2,52 x 1,47 m, 1 foaie cu feronerie EVO SECURITY
  • CSTB Laborator de certificare DTARef. 6/17-2363
  • Certificat ATGFEMEI 3204
  • Test de siguranta(PAS 24): Apto Test de referinta: 1100 x 2400 mm, 1 foaie.

Posibilitate de deschidere

  • Maxim vitrare 55 mm
  • Deschidere interioara: batanta, oscilant-oscilant, oscilator-paralel si oscilanta.
  • Deschidere exterioara: batanta, proiectanta-glisanta, pivotanta cu fixare pe orizontala si verticala.
  • Sectiuni Toc – 70 mm / Foaie – 78 mm
  • Grosime profil Fereastra 1,5 mm
  • Utilizați balcon de 1,7 mm
  • Lungime bara poliamida32 - 35 mm
  • Dimensiuni maxime Latime (L) = 1500 mm Inaltime (H) = 2600 mm
  • Greutate maxima160 Kg Consultati greutatea si dimensiunile maxime conform tipologiei.
  • Finisaje  Posibilitate Bicolor / Vopsire / Eloxare

COR 70 Industrial cu BT